Guicciardini e Magni Architetti Studio Associato

Piero Paolo Guicciardini

Fornace Agresti   


Restauro | Recupero


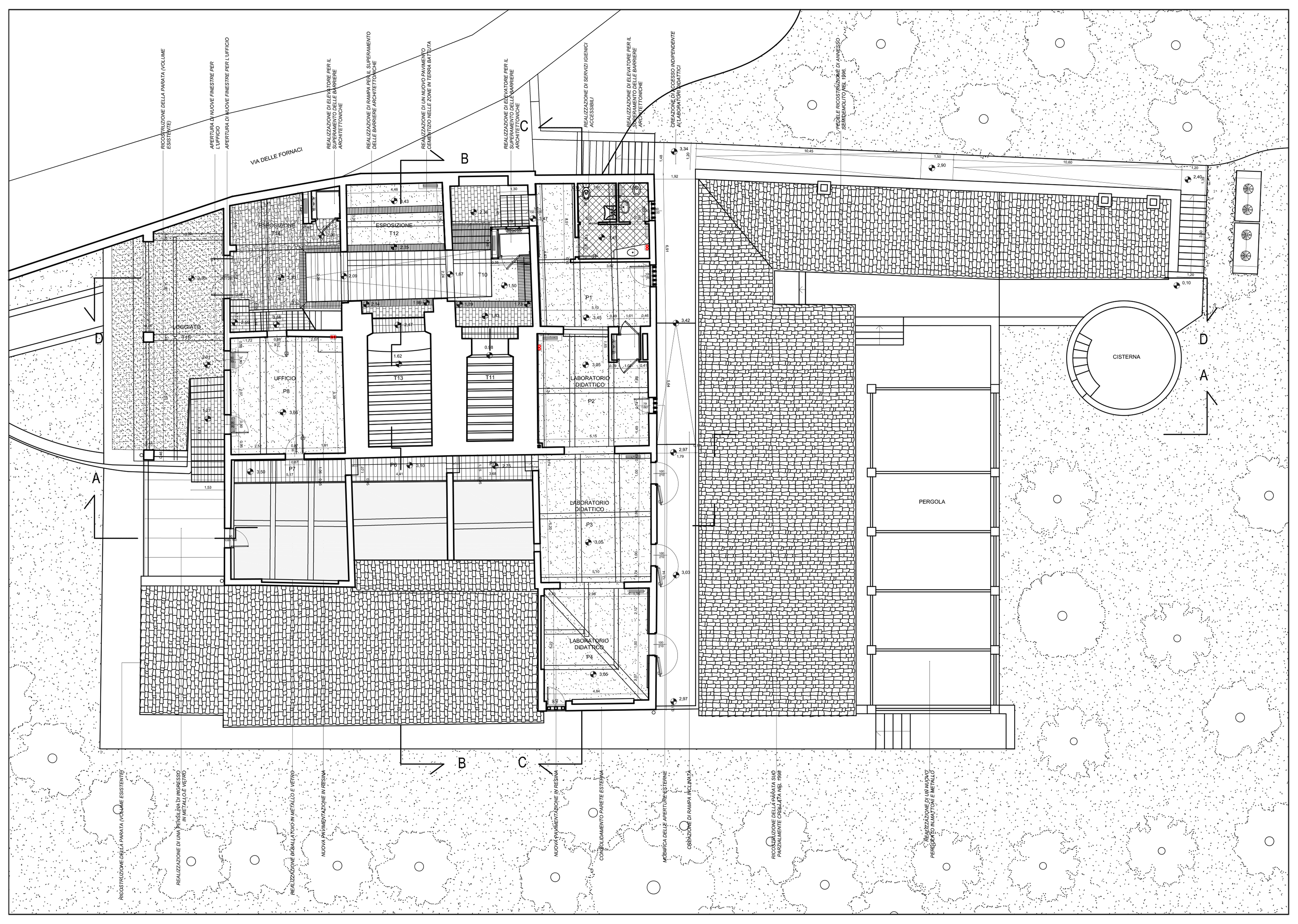
LA FORNACE AGRESTI Progetto di restauro Localizzazione: via delle Fornaci, Impruneta, Firenze Committente: Amministrazione Comunale di Impruneta Progetto: Guicciardini & Magni Architetti Progetto strutture: Enrico Baroni Progetto impianti: Gianni Cinellli Estensione degli interventi: mq. 1.200 La Fornace Agresti è un raro esempio di archeologia industriale. La costruzione risale infatti agli inizi del 700 ed ha subito, nel corso dei secoli, numerose modifiche e trasformazioni. Gli ambienti della Fornace sono quindi il risultato di una serie di aggiunte successive, durante le quali i vari annessi, i loggiati per l’essiccazione e l’immagazzinamento dei prodotti si sono sommati alla struttura dell’antica Fornace in un corpo organico che è quasi privo di connotazioni temporali, ma è reso unitario e significativo dalle tracce e dai segni delle lavorazioni. L’idea che ci ha guidato nella redazione del progetto è che il manufatto sia il reperto principale da mostrare, e così come si restaura un quadro o una scultura che dovranno essere esposti, con la stessa attenzione e cura abbiamo procedendo con il restauro dell’edificio. I lacerti delle pavimentazioni residue in cotto, i segni dello scorrimento dei mezzi e degli animali da soma, gli annerimenti e le bruciature delle zone adiacenti i forni costituiscono un documento unico da conservare, di interesse probabilmente superiore a quello dello stesso organismo architettonico.

Committenza

Amministrazione Comunale Impruneta

Indirizzo

via delle Fornaci, Impruneta, Firenze

Progetto dal

2006

al

2008

Realizzazione dal

2008

al

2014

Progettisti

Studi e liberi professionisti partecipanti al Premio.

Antonella Cacciato

Antonella Cacciato

Antonella Cacciato
Cooperativa Civile stp soc. coop.

Alba Lamacchia

Cooperativa Civile stp soc. co…
MABS Studio

Antonio Marcon

MABS Studio
AGA architettura e gestione ambientale

Barbara Lami

AGA architettura e gestione am…
FABBRICANOVE

Enzo Fontana

FABBRICANOVE
Alessandro Bernardini Architetto

Alessandro Bernardini

Alessandro Bernardini Architet…
AMDB Architetti

Alessandro Marcattilj

AMDB Architetti
Archivio Personale

Alessandra Foschi

Archivio Personale
Area Progetti, UNA2 architetti associati, Neutrostudio, Laura Ceccarelli

Andrea Michelini

Area Progetti, UNA2 architetti…
Premio Architettura Toscana

2018 - 2022 © Tutti i diritti riservati. Fondazione Architetti Firenze, Via Valfonda 1/a, 50123 Firenze

Cod.Fisc./P Iva 06309990486 | Privacy Policy | Cookie Policy

Design by D'Apostrophe | Developed by Shambix