Magazzino autoricambi   


Nuova Costruzione


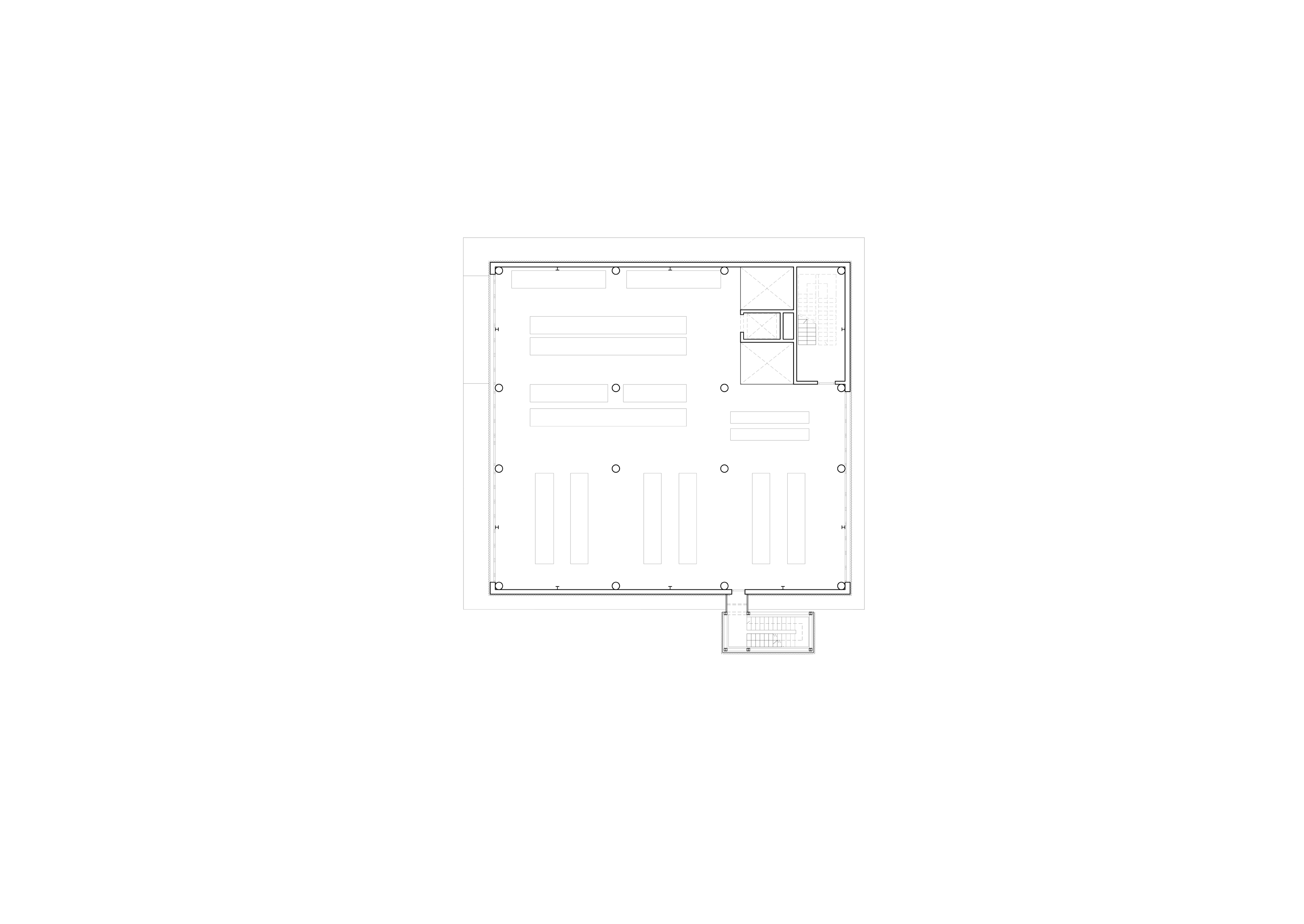
Massima estensione di superficie a parcheggio, massima superficie a magazzino, massima altezza. Il progetto del magazzino per autoricambi viene sviluppato, da una parte partendo da queste richieste programmatiche e dall’altra relazionandosi con un tessuto edilizio di anonimo e discontinuo. Viene elaborata un architettura semplice costituita da un volume di tre piani fuori terra e un ampio parcheggio interrato. La sagoma del fabbricato viene collocata al centro del lotto in modo da liberare gran parte della superficie esterna. Il disegno planimetrico segue quindi uno sviluppo per spazi concentrici costituiti da una successione di fasce funzionali: La prima fascia si sviluppa tutto intorno all’edificio ed è interamente dedicata a circolazione e parcheggio mentre la seconda, piantumata a verde, si estende fino al perimetro della parcella e costituisce un filtro naturale verso il contesto circostante. L’ edificio si mostra essenziale, articolato in due semplici volumi sovrapposti. In basso un basamento in continuità cromatica con il piazzale di asfalto e, su questo podio scuro e opaco, un volume di due livelli, alleggerito da un rivestimento in lamiera di acciaio microforata che riflette le tonalità dell’ambiente. I due “ordini” architettonici rappresentano le relative funzioni interne. Al piano terra spazio di accoglienza e uffici, ai piani superiori spazi destinati a magazzino. Completano il disegno delle facciate la scala e le bucature richieste dalle misure antincendio.

Committenza

Eurocar Italia srl

Impresa Costruttrice

Italbuild srl

Indirizzo

via La Malfa 2, Firenze

Progetto dal

2018

al

2019

Realizzazione dal

2020

al

2021



Opere Architettoniche

Nessuna Opera presente al momento.

Premio Architettura Toscana

2018 - 2022 © Tutti i diritti riservati. Fondazione Architetti Firenze, Via Valfonda 1/a, 50123 Firenze

Cod.Fisc./P Iva 06309990486 | Privacy Policy | Cookie Policy

Design by D'Apostrophe | Developed by Shambix