Edificio polivalente ricettivo e direzionale   


Nuova Costruzione


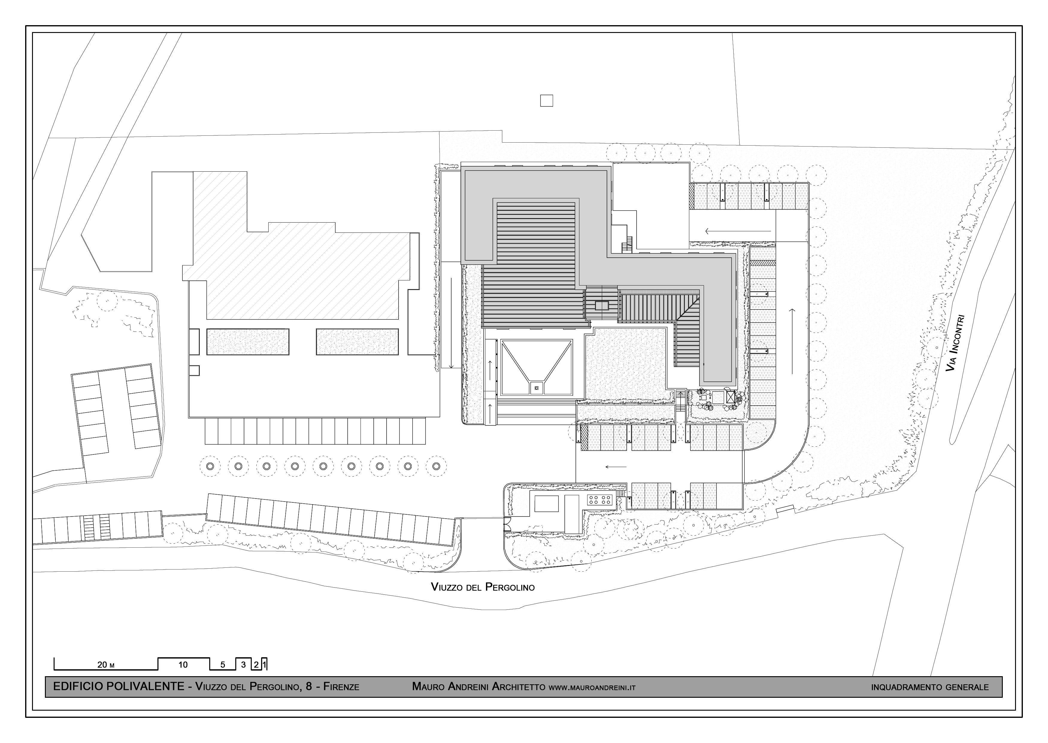
Una "striscia" edificata che richiama l'immagine delle mura urbane e tre elementi che vi si addossano: un elemento "lineare" , un elemento a "capannone industriale" ed un elemento “torre”. I tre elementi sono composti ed uniti a formare una sorta di "trancia" di tessuto urbano caratterizzato proprio dal tema dell'"addossamento", dalla convivenza simbiotica di quattro parti. Come il Ponte Vecchio che dichiara la compresenza dei due elementi fondanti con identità distinte e diverse quali il corridore e le "casette degli orafi", Come i centri fortificati nei quali la crescita interna per stratificazioni successive ha condotto le case ad addossarsi alle mura, Come nelle fortezze trasformate in borghi proprio attraverso l'addossamento delle case lungo il perimetro interno delle mura. Da questi "modelli" storici di architettura spontanea si è formato il progetto che tende a regolarizzare quattro elementi "conosciuti" in una composizione tipologico-figurativa analogica. Il progetto si fonda quindi sull’aggregazione di quattro parti singolari, dove ad ogni singola funzione corrisponde una singola “fisionomia” (forma, aperture, colori,etc.). Tre elementi (il “capannone”, la “torre”, il “palazzo” ) sono racchiusi e raccolti da un quarto elemento (il “muro”) e sono rivolti sulla piazzetta nella quale convergono tutti i principali accessi verso l’interno della costruzione che ospita funzioni di accoglienza,uffici amministrativi,residenze provvisorie,mensa, servizi generali.

Indirizzo

viuzzo del pergolino 8, Firenze

Progetto dal

2003

al

2011

Realizzazione dal

2011

al

2014


Opere Architettoniche

Nessuna Opera presente al momento.

Premio Architettura Toscana

2018 - 2022 © Tutti i diritti riservati. Fondazione Architetti Firenze, Via Valfonda 1/a, 50123 Firenze

Cod.Fisc./P Iva 06309990486 | Privacy Policy | Cookie Policy

Design by D'Apostrophe | Developed by Shambix